After using my PP50, I found that my hand isn't nearly as smooth or coordinated as I'd like. So, I'd like to build a CNC table.
Having mostly finisihed the Hovercraft project after a year and a half - I wanted to do something that would be quicker. But, almost any project would be quicker than that!
My goal is to do the project for as little money as possible since this is more of a toy than a needed tool. And, to limit initial cash outlay, I wanted to do the project in stages so that I wouldn't have to sink too much money in all at once.
In my work life, I write embedded control software (currently for medical devices), so I'm comfortable with the electronics and software side of the project. I figured I could save the most money on the drive control if I went the E-bay route and I'm fairly confident that if the parts are functional, I'll be able to get them to work.
I have about 8 hours in on the electronics and 8 hours in on the table (just started this week).
I got a four axis drive kit Wantai Motor with:
- (4) Nema 23 428 oz dual shaft motors
- (4) 4.2 ampp stepper controllers
- (2) 36 vokt, 350 watt power supplies
- (1) breakout board
- (1) parallel cable
I didn't necessarily want the dual shaft motors since I don't plan on adding encoders, but this kit shipped from a US warehouse. So, I went with this for $406.
The first thing I did was to do a quick/temporary wiring job to make sure all the components worked. Using the demo version of Mach, I could spin all the motors, so I figured that was good enough to continue with the project. With that done, I picked up my steel on Monday.
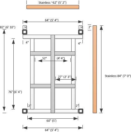
I'll post the drawing I did for my table when I get a chance (it's in Visio and I only have that at work).
I'll post pictures and prices since I'm trying to build a "hobby level table" at "garage project prices".
I'll go into more detail on the electronics side, since that information is harder to find when you try to do research on the internet.



Reply With Quote
Back from before Microsoft bought it and the was a specific technical edition.

